貸店舗・貸事務所(区分)

フジヒロ北5条ビル

33

90
-
-
011-721-3228

お電話の際は「ホームページを見て」とお伝えください

円山至近の1階路面テナントでございます。前面ガラス張りのテナントは視認性にも優れております。駐車場も2台、ご契約いただけます。 様々な業種で募集しております。ご内覧などどうぞお気軽にお申し付けくださいませ! ⭐️弊社HPに非公開物件を多数掲載しております!⭐️
円山至近の1階路面テナントでございます。前面ガラス張りのテナントは視認性にも優れております。駐車場も2台、ご契約いただけます。 様々な業種で募集しております。ご内覧などどうぞお気軽にお申し付けくださいませ! ⭐️弊社HPに非公開物件を多数掲載しております!⭐️

基本情報

賃料・費用

33

90万円
-
-
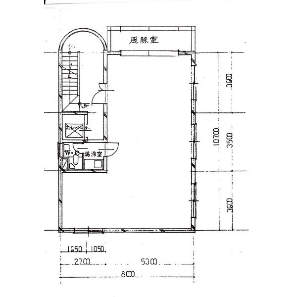
間取り・専有
71.41㎡
住所
交通
二十四軒駅(徒歩14分)
西28丁目駅(徒歩6分)
築年月
築34年(1991年8月)
駐車場
有り 1万6,500円/台 空き2台

設備・特徴

特徴
路面店 前面ガラス張り
立地
複数路線利用可 幹線道路沿い

物件概要

階数
1階/地上4階建(地下1階)
専有面積
21.60坪 (71.41㎡)
所在地
北海道札幌市中央区北五条西25丁目4-18
構造
鉄筋コンクリート(RC)造
契約期間
定期借家
引渡し時期
即時
取引態様
媒介(客付)
1階路面店 前面ガラス張り ワンフロア物件 おすすめ業種: 軽飲食 オフィス 事務所 理美容 クリニック 福祉系 その他サービス系店舗など 他にも非公開物件を多数ご用意しております!

費用詳細

賃料
33万円
敷金
90万円
仲介手数料
33万円
駐車場
有り

駐車可能台数: 2台

料金: 1万6,500円/台

電話でお問合せ
011-721-3228

受付時間:365⽇(9:00~19:00) 定休日:年中無休

電話する メール