物件No.603034  貸店舗・貸事務所(区分) 居抜き

ノルテ5・6ビル

1144,000

312
-
-
011-721-3228

お電話の際は「ホームページを見て」とお伝えください

【札幌駅まで徒歩4分】ご通勤にも便利な立地にございます。2025年10月から賃借可能となります。 ※非公開テナントや空き予定物件ならテナント札幌にお任せくださいませ!
【札幌駅まで徒歩4分】ご通勤にも便利な立地にございます。2025年10月から賃借可能となります。 ※非公開テナントや空き予定物件ならテナント札幌にお任せくださいませ!

基本情報

賃料・費用

1144,000

312万円
-
-
間取り・専有
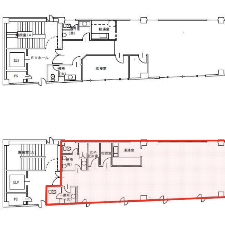
265.76㎡
住所
交通
札幌駅(徒歩4分)
駐車場

出店おすすめ業種

居抜き情報

オフィス

設備・特徴

建物設備・特徴
エレベーター
冷暖房
エアコン付
立地
複数路線利用可 駅前立地 商店街に面す 幹線道路沿い
室内設備・特徴
デザイナーズ
特徴
男女別トイレ

物件概要

専有面積
80.39坪 (265.76㎡)
所在地
北海道札幌市中央区北五条西6丁目1
契約期間
普通借家
引渡し時期
相談
出店可能業種
事務所、その他
居抜き情報
オフィスの居抜き
取引態様
媒介(客付)
物件No.
603034
デザイナーズ物件 駅近物件 大型物件 商店街に面す 札幌駅エリア おすすめ業種: 事務所 オフィス その他 ☆賃料等の諸条件ご相談くださいませ。 札幌市内すべてのテナントをご紹介致します! 他にも非公開物件を多数ご用意しております!

費用詳細

賃料
114万4,000円
敷金
312万円
仲介手数料
114万4,000円
その他、固定費(エレベーター点検料など)
3万2,010円
電話でお問合せ
011-721-3228

受付時間:365⽇(9:00~19:00) 定休日:年中無休

電話する メール