物件No.Y55224  貸店舗・貸事務所(区分)

【物件名非公開】

59590 (+管理費 113,575)

-
-
413
011-721-3228

お電話の際は「ホームページを見て」とお伝えください

すすきの中心部にある楽器演奏が可能なテナントでございます。音の問題でお困りのテナント様には必見です!御内覧などぜひお気軽にお申し付けくださいませ。 ⭐️ネット非公開物件やレア物件も多数ご紹介させていただきます。ぜひテナント札幌にお任せください!!⭐️
すすきの中心部にある楽器演奏が可能なテナントでございます。音の問題でお困りのテナント様には必見です!御内覧などぜひお気軽にお申し付けくださいませ。 ⭐️ネット非公開物件やレア物件も多数ご紹介させていただきます。ぜひテナント札幌にお任せください!!⭐️

基本情報

賃料・費用

59590 (+管理費 113,575)

-
-
413万円
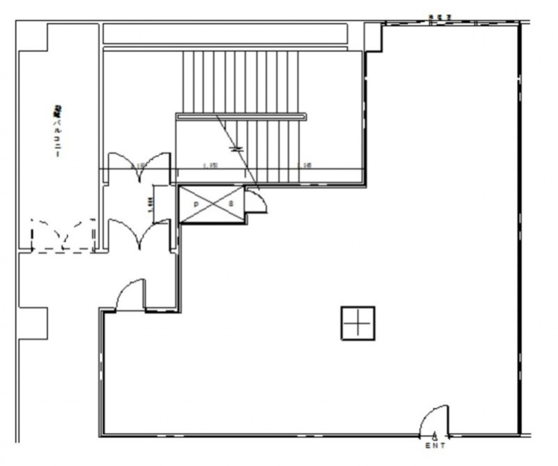
間取り・専有
136.53㎡
住所
交通
駐車場

出店おすすめ業種

設備・特徴

建物設備・特徴
エレベーター
立地
複数路線利用可 駅前立地 商店街に面す 幹線道路沿い
特徴
スケルトン

物件概要

階数
4階
専有面積
41.30坪 (136.53㎡)
所在地
北海道札幌市中央区南五条西2丁目
契約期間
定期借家
引渡し時期
即時
出店可能業種
飲食全般(重飲食含む)、喫茶・カフェ(軽飲食)、バー・クラブ・スナック
取引態様
媒介
物件No.
Y55224
デザイナーズ物件 駅近物件 すすきのエリア おすすめ業種: 重飲食 飲食店 カフェ バー その他 ☆賃料等の諸条件ご相談くださいませ。 札幌市内すべてのテナントをご紹介致します! 他にも非公開物件を多数ご用意しております! *賃料等課税対象となる金額には別途消費税が加算されます。

費用詳細

賃料
59万590円
保証金
413万円
仲介手数料
59万590円
管理費/共益費
11万3,575円
冷暖房費
11万3,575円
EV使用料
1万3,629円
看板掲載費
2,200円
防虫防鼠、排水管清掃費
9,086円
電話でお問合せ
011-721-3228

受付時間:365⽇(9:00~19:00) 定休日:年中無休

電話する メール